Uudelle asuinalueelle Siilinjärven Haapamäkeen on rakenteilla nykyaikainen, toimivalla pohjaratkaisulla ja maalämmöllä varustettu omakotitalo autokatoksella. Valmistuminen on kesäkuussa 2026.
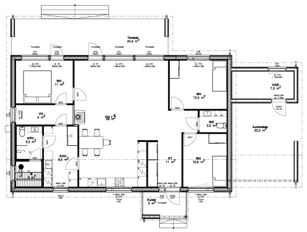
Omakotitalon erityispiirteitä ovat läpi talon oleva avara ja valoisa olohuone-keittiö, josta olohuonenäkymä avautuu takapihan ja puistoalueen suuntaan suurilla ikkunoilla. Sekä olohuoneesta että päämakuuhuoneesta on käynti suurelle takaterassille. Päämakuuhuoneesta on käynti myös erillisen vaatehuoneen kautta kodinhoito- ja kylpytiloihin. Keittiö varustetaan integroiduilla ja nykyaikaisilla kodinkoneilla. Keittiöstä löytyy mm. aamiaiskaappi, sekä induktiotaso liesituulettimella. Kiintokalusteina käytetään Puustellin moderneja ja kestäviä kalusteita.
Väliseinät rakennetaan viikolla 13, joten siihen asti on mahdollisuus vaikuttaa vielä väliseinien sijaintiin. Kiintokalusteisiin, jotka tilataan väliseinien rakentamisen jälkeen, voi myös vielä vaikuttaa. Maalisävyt, sekä muut pintamateriaalit on suunniteltu sisustussuunnittelijan kanssa, mutta niihinkin on mahdollisuus vaikuttaa niiden lopulliseen tilaamiseen asti.
Haapamäki on Etelä-Siilinjärveen kuuluva asuinalue aivan Savon ammattiopiston Siilinjärven Toivalan kampuksen läheisyydessä, loistavien kulkuyhteyksien varrella. Julkinen liikenne kulkee hyvin niin Vuorelan, joka on Etelä-Siilinjärven keskus, kuin Kuopion ja Siilinjärven keskustan suuntaan. VT5 on myös nopeasti saavutettavissa. Koulualueena Haapamäen alueella toimii Vuorelan uusi, 2020 valmistunut koulu.
Mikäli haaveilet uudesta kodista Siilinjärven eteläosista, loistavien julkisten kulkuyhteyksien varrelta, tämä koti voisi olla sopiva juuri sinulle. Mikäli kiinnostuit, ota rohkeasti yhteyttä!
Tontin omistus: vuokra
Kiinteistötunnus: 749-414-1-204
Tontin pinta-ala: 1064 m2
Tontin vuokraaja: Siilinjärven kunta
Tontin vuokra: 1436,40€/v